项目简介
项目展示

团结 务实 博采 求精

- 案 例 -
®
W A N G A I & 2 0 2 2
建筑装饰设计与施工 | 建筑幕墙设计与施工
园林景观设计与施工 | 美式别墅设计与装修


锦绣江城
售楼部及样板房空间
延续建筑设计理念,根据使用功能以及定位,我们以现代、舒适、人性化为出发点,从现代美学中提取相关元素,通过解构与演变等设计手法,用简洁的设计语言表达空间。

设计本是一种生活方式的体验,也是不同生活的各种感受和体会。设计就是以人为本,通过对人的五觉为基础进入感觉—嗅觉、视觉、味觉、听觉,最终达到身心合一及生活精神完美统一。然而这样的设计最终需要在建筑物理学和人体工程学基础上注入人性温度。温度设计— 思想、文化、责任,传承及鲜活的生命体。
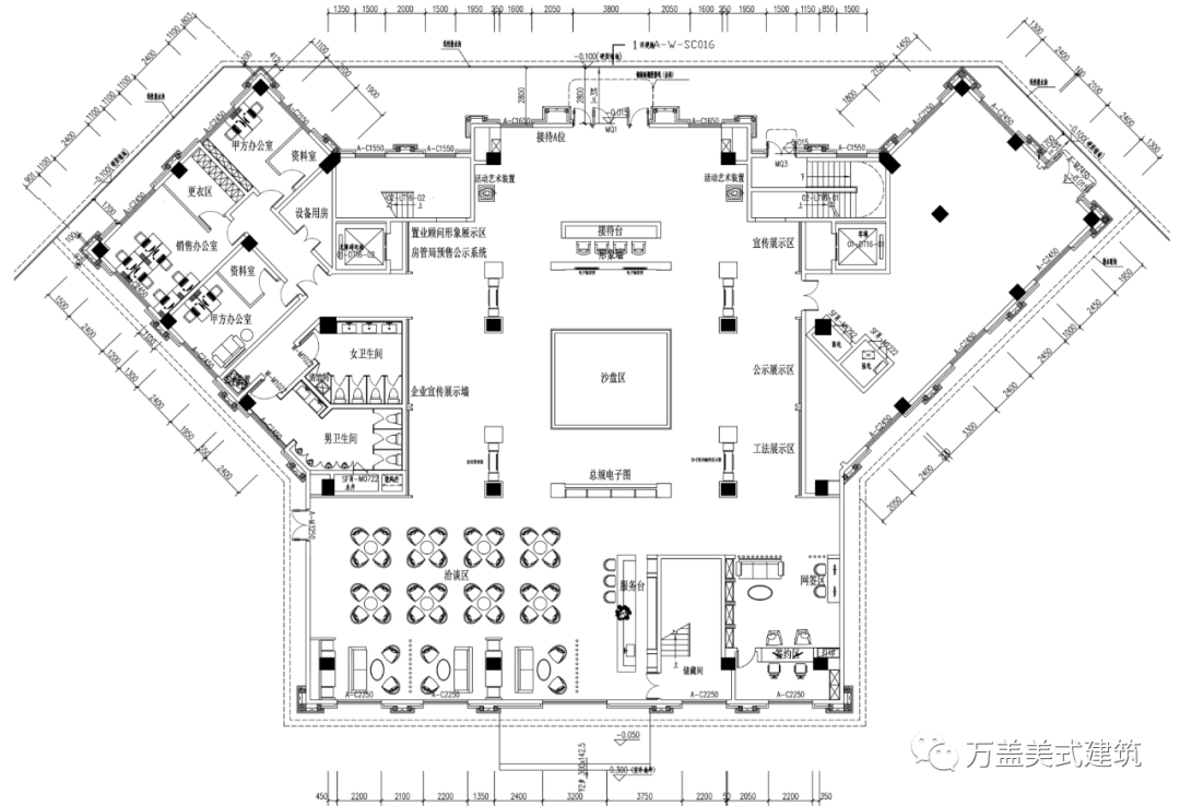
锦绣江城售楼部


在设计中,利用人文与自然的结合,突出城市印象和地理优势。在结合功能、美观、经济的前提下, 突出简约、明亮、时尚的设计空间理念。带给参观者清爽、放松与品质感。



“色”公共空间以暖色为主调,搭配金色作为空间点缀,在营造温馨、舒适感的同时,塑造出回家的仪式感。“光”首层大堂采用自然采光搭配人工照明,入户玻璃门将自然光引入到空间中,形成光影交互的视觉效果。
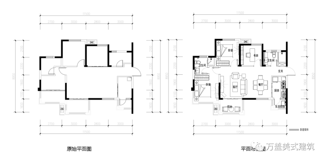
样板房 | B户型


户型:B户型
设计风格:现代简约风格
设计在简淡的米色调中,用枫叶色与金色进行局部点缀,以虚化实,将落枫的柔软与日暮的暖意纳入空间情调中,室内透着日常的味道,温暖美好,静宁安然。在部品的选择上注重质感,匹配物质与精神层面的审美格调,呈现雅致时尚的空间气质。


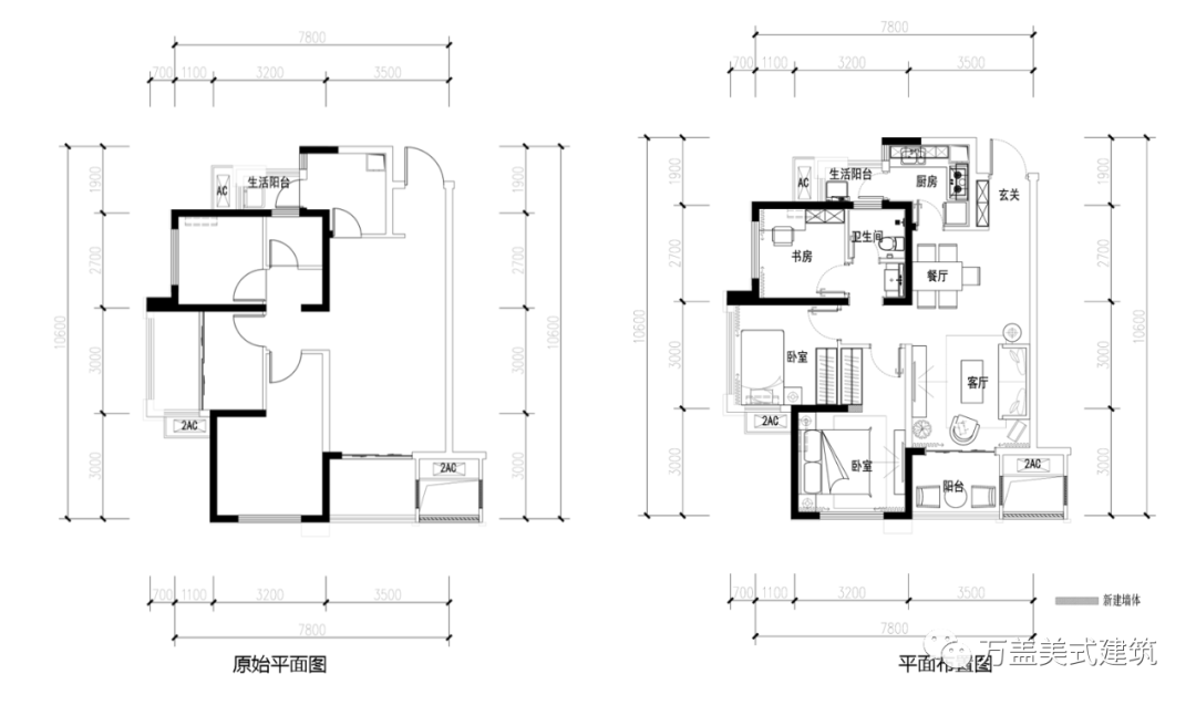
样板房 | B1户型


户型:B1户型
设计风格:现代轻奢



企业全称:四川省万盖绿色建筑股份有限公司
Copyright © 2024 All Rights Reserved 备案编号:蜀ICP备16014238号-1